



Description
A rare architectural gem in miami shores, where timeless art deco elegance meets modern european flair. Fully renovated yet rich in original character, this 4-bed, 4. 5-bath residence sits on a 14,300 sf lot surrounded by lush privacy. Floor-to-ceiling impact windows flood the interiors with light, revealing terrazzo floors, stone accents, and a marble dining salon that blend riviera sophistication with california ease. The heated saltwater pool, framed by iconic yellow awnings, creates a resort-style oasis made for entertaining. The expansive primary suite features dual walk-ins and a seamless indoor-outdoor flow. Steps from cafés, boutiques, and top schools, yet tucked in complete privacy. . It’s a slice of the south of france, reimagined in miami. No flood insurance required. ...
Characteristics
Price
$3,250,000
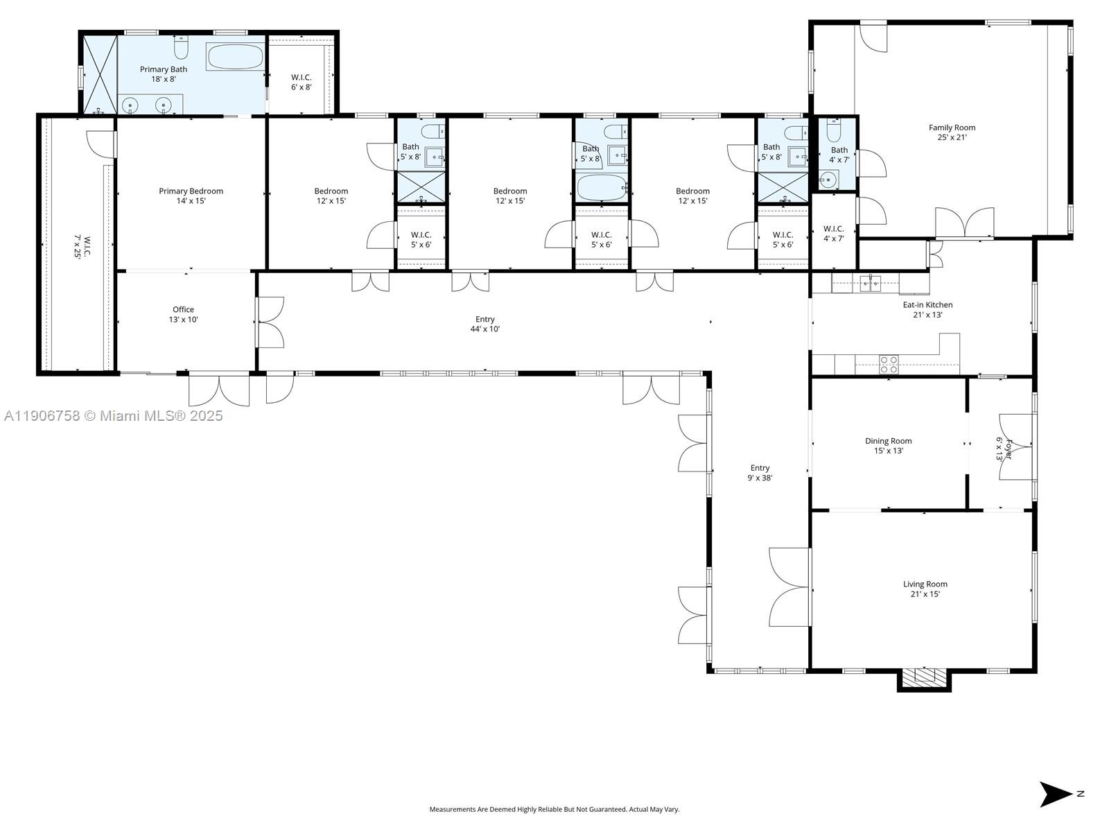
Bedrooms
5
Bathrooms
5
Living Area
4,086 Sq Ft
Living Area (m2)
380 m2
Reference
MIA422658079
Type
House
Days On Market
4
Year Built
1938
Status
Active
Amenities
Air Conditioning
Dishwasher
Dryer
Fence
Parking
Patio
Pets
Pool
Refrigerator
Washer
Property Location
Data provided by Miami Board of Realtors. Courtesy of Barnes International Realty, LLC. Information is reliable but not guaranteed. No information has been verified for authenticity or accuracy and may not reflect current real estate market activity. Copyright 2026. All Rights Reserved.



















































































